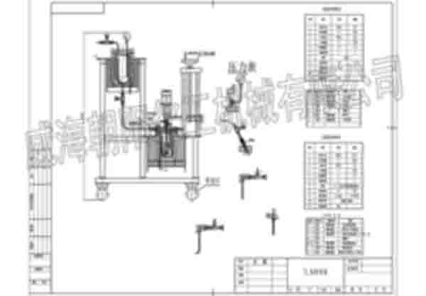
我公司為上海地區客戶制作的1L成套反應釜。設備由兩臺反應釜組成,一臺為無攪拌快開裝置,第二臺采用磁力驅動攪拌器配錨式+推進攪拌槳葉,設計溫度300℃,設計壓力為12.5MPa。制造材質為哈氏合金C-276。攪拌轉速達1000r/min。控制系統配備壓力傳感器及上微機軟件。
此外客戶另備一臺1L反應釜以便獨立使用。



銷售一部:李經理
手機:15562126089 座機:0631-5779788
銷售二部:李 總
手機:18606319738 座機:0631-5779588
郵箱:zhaoyanghuaji01@foxmail.com
地址:山東省 威海市 環翠區 張村鎮 和徐疃 云科產業園
來源:威海朝陽化工 時間:2018-11-27 13:26:32 瀏覽次數:
此外客戶另備一臺1L反應釜以便獨立使用。


